Work
About
Team
Clients
Contact
Work
About
Team
Clients
Contact
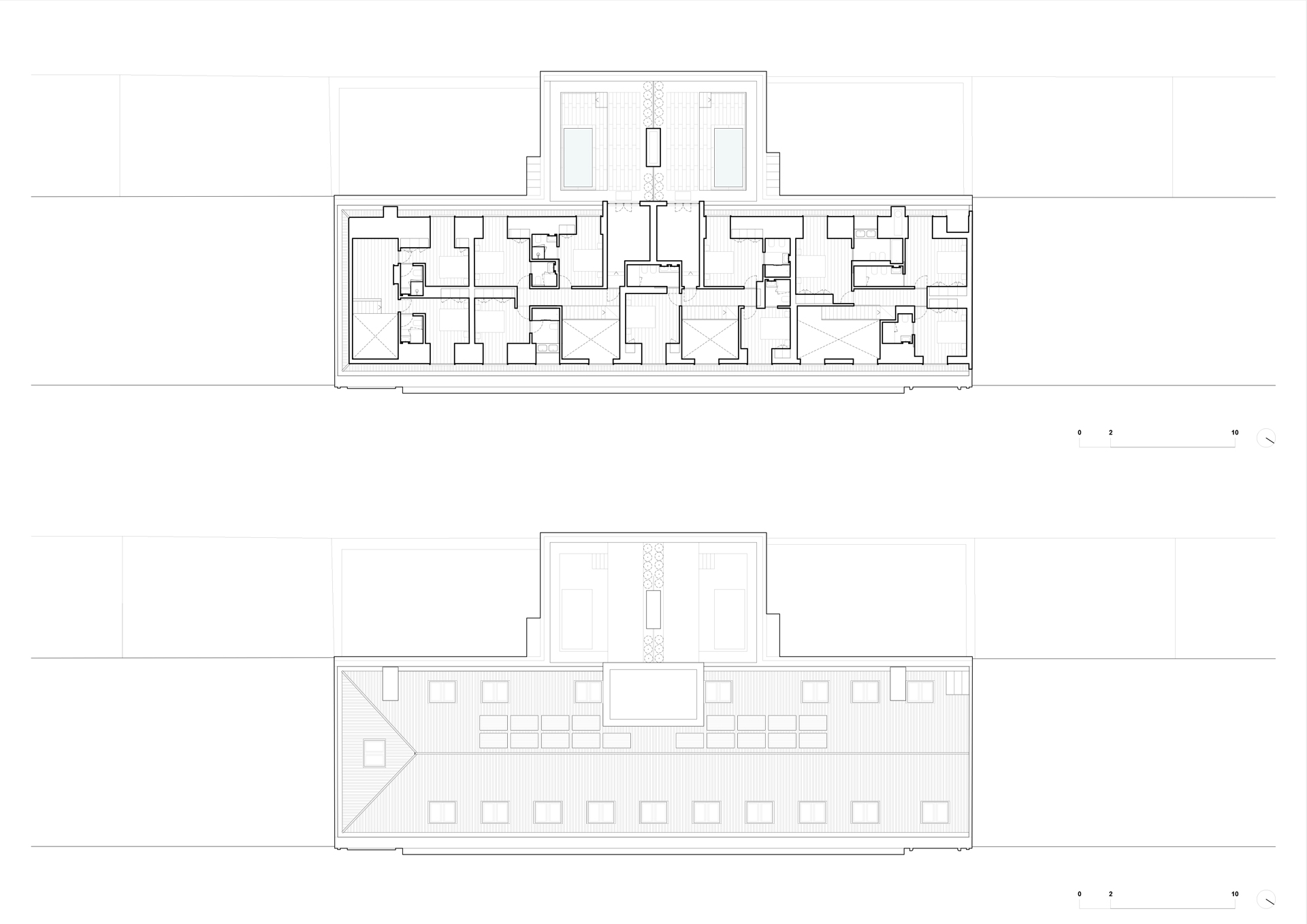
AAA23
NAME:
AAA23
IN COLLABORATION:
ARX PORTUGAL
TIMELINE:
2016
LOCATION:
LISBOA, PORTUGAL
STATUS:
COMPLETED
TYPOLOGY:
RESIDENTIAL
SIZE:
6.500 M²
PHOTOGRAPHY:
FERNANDO GUERRA
AAA23
January 7th, 2026
mrosa