NAME: RCA10
TIMELINE: 2017-2019
LOCATION: OEIRAS, PORTUGAL
STATUS:
PLANNING APPLICATION
TYPOLOGY: RESIDENTIAL
SIZE: 350 M²
VISUALIZATION: JOÃO VALE

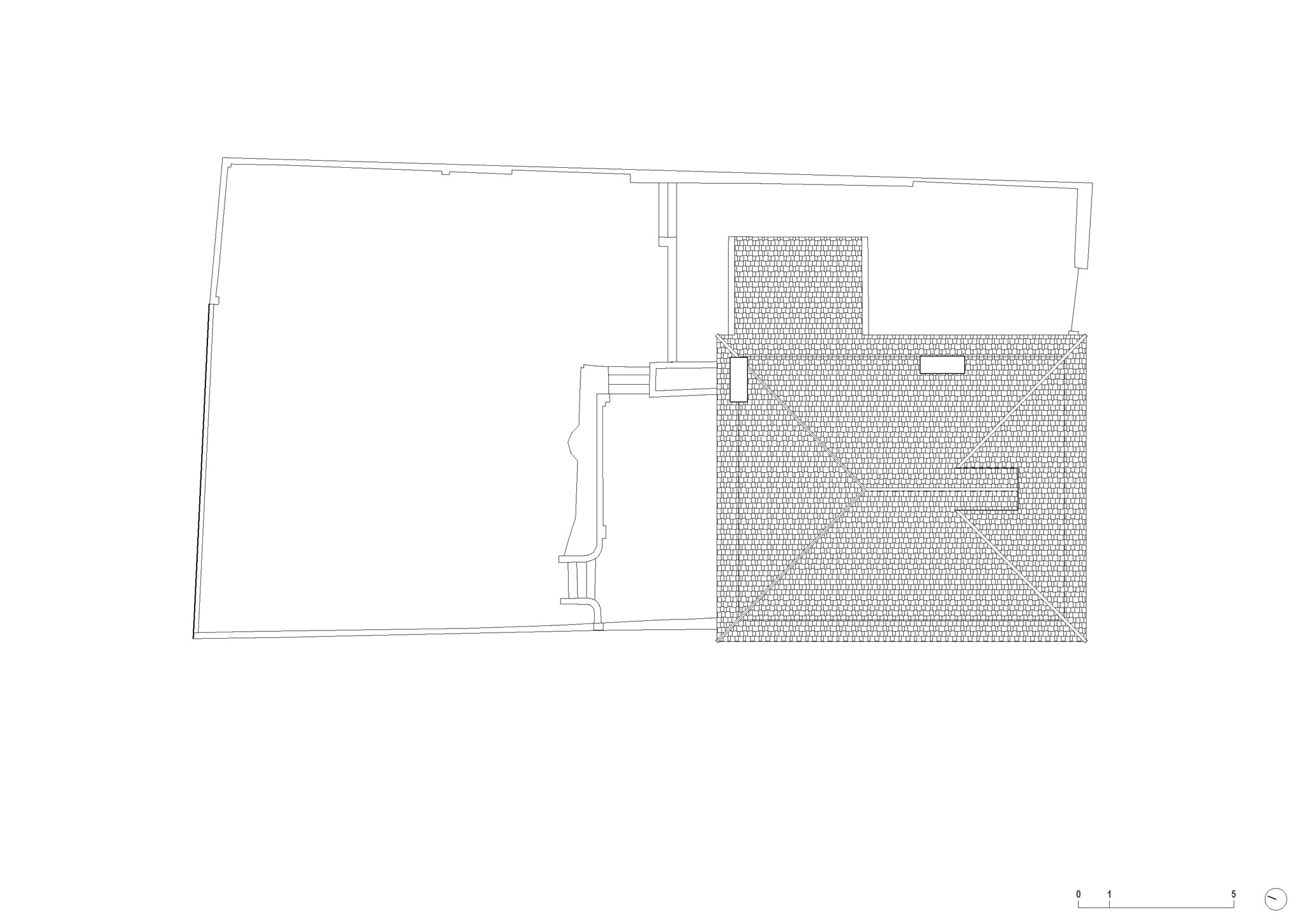
Existing
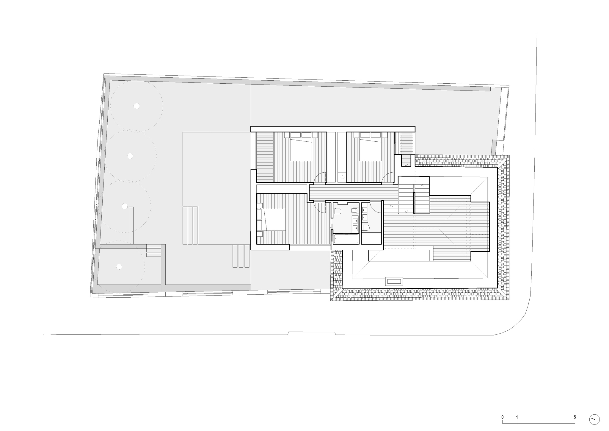
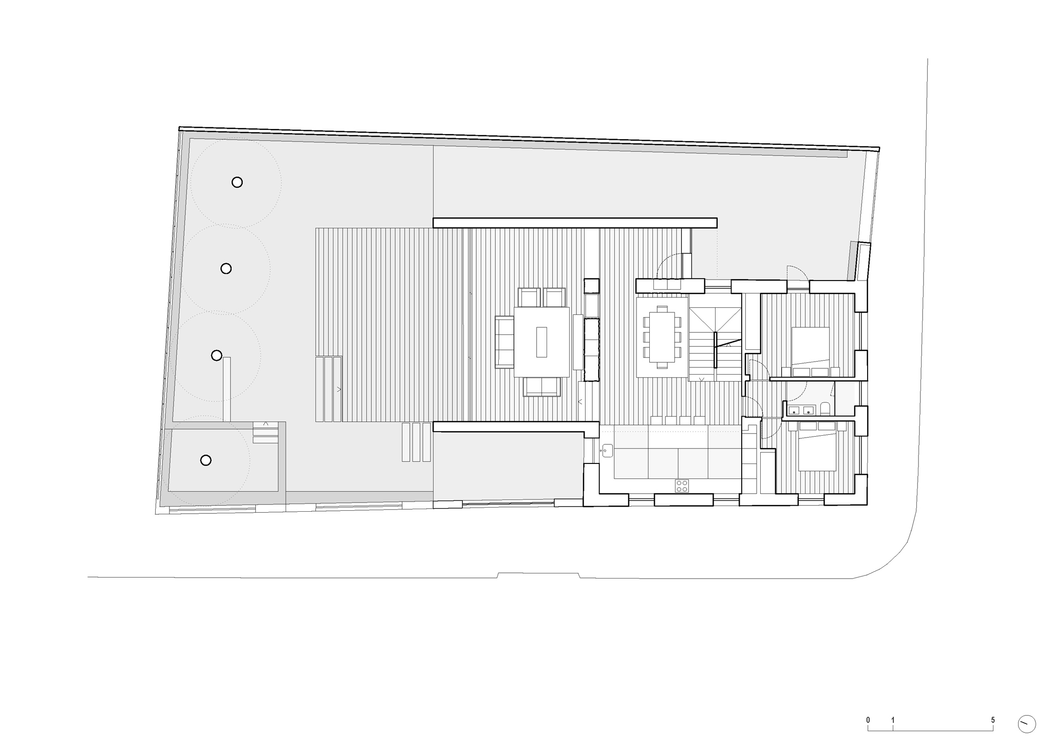
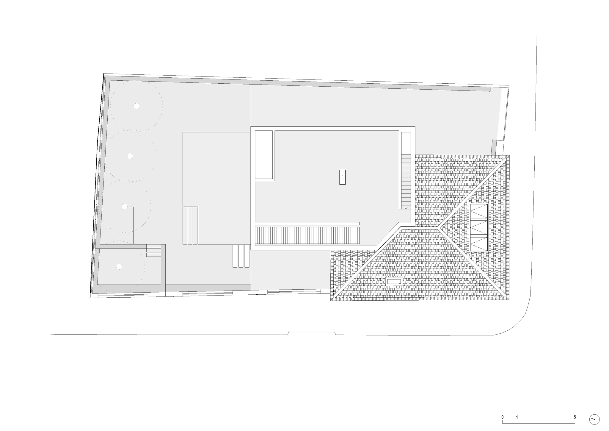
Proposal
Proposal
Proposal
Proposal
Proposal
Proposal
Proposal
Proposal
Proposal
Proposal

Existing